办公空间
餐饮空间
酒店民宿
商业店铺
休闲娱乐
工厂装修
设计团队
施工团队
走进富一
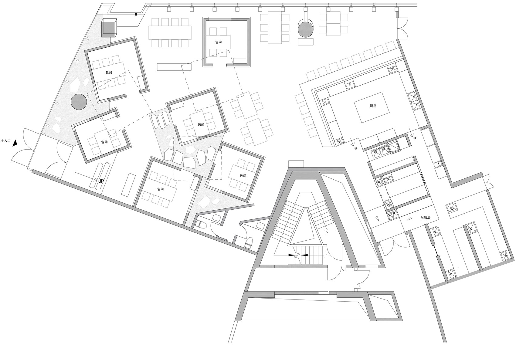
342平方 / 餐饮空间:
342平方 ㎡
寒冷的冬季使人们倍加期待春天到来时花瓣漫天飞舞的景色。
免费装修报价
客服热线:13586729472
宁波市江北区恒一大厦
我们收到您的预约后会立即联系您
百看不如一问
拨打电话 13586729472
欢迎来访
Copyright 富一建筑设计有限公司 All Rights Reserved 浙ICP备2021035596号-1
10秒获取装修报价清单
温馨提示:报价清单将发送到您的手机
主材费: ?元
辅材费: ?元
人工费: ?元
软装费: ?元(参考价)
立即享受免费测量,报价服务
或者24h咨询电话13586729472